Modern Gallery
Zgłoś naruszenie...
Wybierz jedną z poniższych opcji.
Ten komentarz dotyczy mnie lub znajomego:
atakuje mnie,
atakuje znajomego.
Komentarz dotyczy czegoś innego:
spam lub oszustwo,
propagowanie nienawiści,
przemoc lub krzywdzące zachowanie,
treść o charakterze erotycznym.
Napisz
PANEL

guliwer2011

wpisy na blogu

Wizualizacje

Blog:  guliwer2011
Data dodania: 2012-10-01
wyślij wiadomość

tak jak pisałam wczoraj dodaję wizualizacje wykonane przez projektanta wg których wykańczamy wnętrze naszego Guliwera... 

blog budowlany - mojabudowa.pl

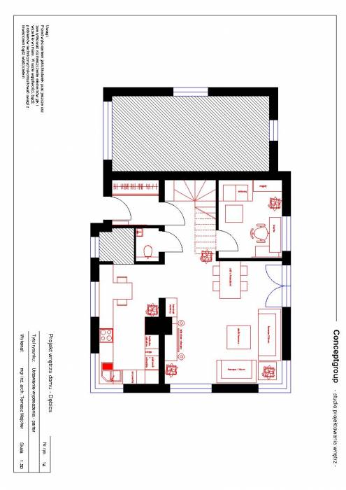
Ustawienie wyposażenia - parter

blog budowlany - mojabudowa.pl

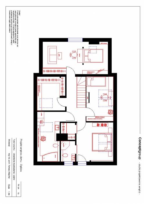
Ustawienie wyposażenia - poddasze

blog budowlany - mojabudowa.plblog budowlany - mojabudowa.pl

Witam Wszystkich

Blog:  guliwer2011
Data dodania: 2012-09-30
wyślij wiadomość

budowę naszego Guliwera rozpoczęliśmy w listopadzie zeszłego roku, dzisiaj jesteśmy na etapie wykończeń - projekty wnętrz mamy i bardzo ułatwia nam to wykonywanie wszytkich prac, łącznie z zakupamismiley

a teraz na poczatek kilka zdjęć z poszczególnych, zakończonych już etapów...

 

Zdjęcia z obecnego etapu oraz wizualizcje wnętrza wstawię w ciągu najbliższych kilku dni.

Pozdrawiamsmiley

 

guliwer2011 Wyślij wiadomość do autora OBSERWUJ BLOGA
statystyki bloga
Odwiedzin bloga: 3386
Komentarzy: 139
Obserwują: 103
On-line: 9
Wpisów: 27 Galeria zdjęć: 107
Projekt GULIWER
BUDYNEK- dom wolno stojący , parterowy z poddaszem bez piwnicy
TECHNOLOGIA - murowana
MIEJSCE BUDOWY - Głowaczowa
ETAP BUDOWY - VII - Wykończenia
ARCHIWUM WPISÓW
2014 listopad
2013 czerwiec
2013 maj
2013 luty
2013 styczeń
2012 grudzień
2012 listopad
2012 październik
2012 wrzesień

Statystyki mojabudowa.pl
Liczba blogów: 68111
Liczba wpisów: 223122
Liczba komentarzy: 902960
Liczba zdjęć: 682419
Liczba osób online: 38
usuń reklamy
Top 100 blogów

sprawdź listę 100 najczęściej odwiedzanych blogów.

sprawdź teraz